Indisponibil
Inchiriez spatiu comercial stradal cartier Tractorul
650 € / lună
aura popa
Luni - Vineri: 10:00 - 18:00Vrei sǎ vinzi o proprietate ca aceasta? Contacteazǎ-ne pentru o evaluare!
Detalii
- ID proprietate:792785
- Pret:650 € / lună
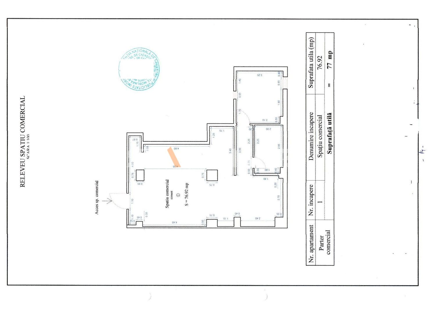
- Suprafata construita:77 m²
- Nr camere:2
- Suprafata utila:77 m²
- Nr. et. cladire:1
- Etaj:Parter
- Bai:1
- An constructie:1980
- Tip proprietate:Spatiu Comercial
- Compartimentare:Open space
- Disponibilitate:Imediat
Descriere
PROPRIETATE INCHIRIATA !!!
Compania STARTIMOB va propune spre inchiriere un spatiu comercial situat in cartierul Tractorul.
Spatiul beneficiaza de multa vizibilitate datorita spatiilor vitrate mari si a vitrinei stradale de 6,7 ml, are o suprafata totala de 77 mp si dispune de o sala de vanzare, grup sanitar si birou de 10 mp .
Spatiul se preteaza oricarei activitati comerciale de tip sediu bancar/ asigurari, agentie de turism, farmacie, cabinete medicale, imagistica, showroom, casino, depozit etc .
Spatiul dispune de utilitati, incalzire comuna cu centrala termica pe gaz calculata la suprafata utila, tamplarie PVC cu geam termopan, acces stradal, parcare .
Pret inchiriere : 650 Euro\luna .
Se solicita contract garantat minim un an, plata in avans a primei chirii si o garantie in cuantumul a 3 chirii lunare pentru buna desfasurare a contractului .
Disponibilitate : LIBER SPRE INCHIRIERE.
Detalii si vizionare la nr. de tel : 0733.092.093, persoana de contact -Aura Popa .
Adresa
- Localitate:Brasov
- Zona:Tractorul