Indisponibil
Garsoniera mobilata zona Afi Palace Mall
49,800 €
Simuleaza creditaura popa
Luni - Vineri: 10:00 - 18:00Vrei sǎ vinzi o proprietate ca aceasta? Contacteazǎ-ne pentru o evaluare!
Detalii
- ID proprietate:1422325
- Pret:49,800 €
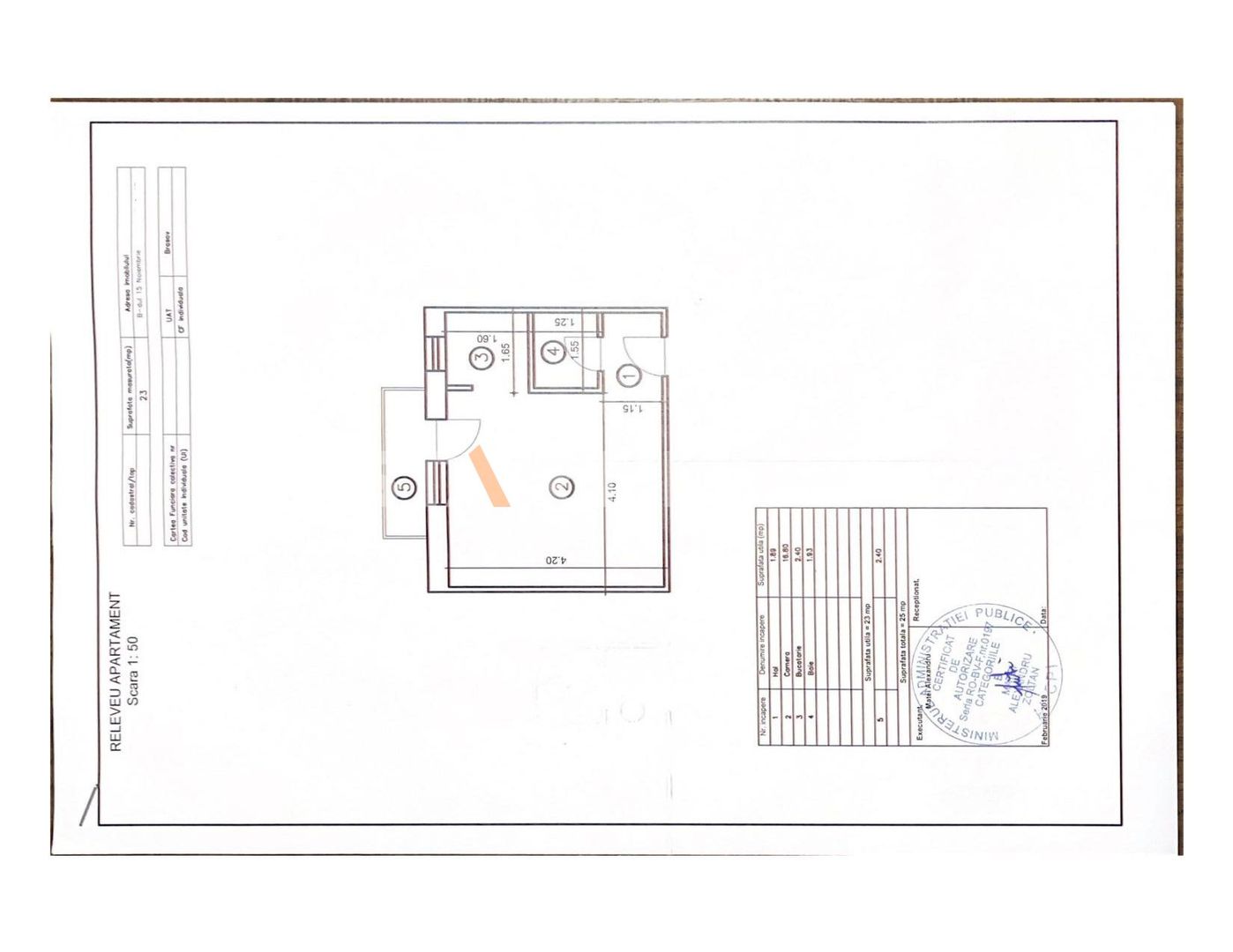
- Suprafata construita:25 m²
- Nr camere:1
- Suprafata utila:25 m²
- Nr. et. cladire:4
- Etaj:4
- Bai:1
- An constructie:1970
- Tip proprietate:Apartament
- Compartimentare:Semidecomandat
- Disponibilitate:Imediat
- Nr. locuri parcare:1
Descriere
PROPRIETATE TRANZACTIONATA !!!
Compania STARTIMOB va propune spre achizitie in Reprezentare Exclusiva si cu comision ‘’0’’ pentru cumparator, o garsoniera mobilata si utilata complet, situata la etajul 4 al unui bloc de apartamente, construit din caramida si amplasat in Centrul Civic , pe B-dul 15 Noiembrie.
Garsoniera dispune de contorizari separate la utilitati, are o structura semidecomandata, in suprafata totala de 25 mp, fiind compusa din camera, bucatarie, hol, baie si balcon inchis in termopan si izolat pe interior.
Garsoniera este renovata integral cu instalatii electrice si sanitare noi, zugravita in vopsea lavabila, mobilata in stil minimalist si in tonuri scandinave, insorita cu o pozitionare estica, dispune de centrala termica proprie, sistem de aer conditionat, conexiune Internet si TV (RDS), loc parcare suprateran si acces facil catre toate zonele de interes din Brasov.
Ca si dotari amintim : masina de spalat automata, cuptor electric, hota, plita pe gaz, televizor LCD, aparat aer conditionat, dulap tip dressing, pat si canapea, etc..
Performanta energetica: -Clasa Energetica/ B
-Consumul anual scpecific de energie (kWh/m2an) / 190,84
-Indice de emisii echivalent CO2/ 43,46
-Consum anual specific de energie din surse regenerabile/ 0
Pozitionarea la numai 5 minute distanta de centrul orasului, este principalul atu al proprietatii.
De asemenea, proximitatea fata de mijloacele de transport, magazine, Afi Palace Mall, scoli, gradinite, cabinete medicale, farmacii, spitale si banci, ii ofera cumparatorului conditii optime pentru achizitia acestei proprietati .
Proprietatea este pretabila pentru inchiriere si in regim hotelier si ofera un randament bun in cazul unei investitii pe termen lung.
Detinem cheile proprietatii si se poate viziona incepand cu 10 FEBRUARIE 2022, pe baza de programare telefonica .
Pret vanzare : 49800 Euro.
Detalii si vizionare la nr. de tel: 0733.092.093, persoana de contact -Aura Popa.
Adresa
- Localitate:Brasov
- Zona:Centrul Civic
Calculator credit ipotecar
Suma creditabila estimata (RON):
Suma creditata (RON)
Rata dobanzii
Rata lunara incepand de la (RON)
Suma totala de restituit (RON)
Suma totala de restituit credit vechi (RON)
Suma totala de restituit dupa refinantare (RON)
Suma economisita dupa refinantare (RON)
Rata lunara credit vechi (RON)
Rata luna dupa refinantare (RON)
Primeste o oferta personalizata, GRATUIT!
Aceste calcule sunt estimative si se bazeaza pe ofertele aflate in portofoliul TMA (The Money Advisor) pentru creditele in RON.
Pentru o solutie adaptata nevoilor tale de finantare, completeaza formularul de contact.
Hai sa incepem