Indisponibil
Garsoniera mobilata cu parcare Piata Astra
55,000 €
Simuleaza creditaura popa
Luni - Vineri: 10:00 - 18:00Vrei sǎ vinzi o proprietate ca aceasta? Contacteazǎ-ne pentru o evaluare!
Detalii
- ID proprietate:1537969
- Pret:55,000 €
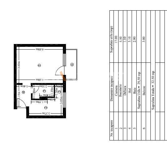
- Suprafata construita:41.31 m²
- Nr camere:1
- Suprafata utila:32.5 m²
- Nr. et. cladire:4
- Etaj:4
- Bai:1
- An constructie:1967
- Tip proprietate:Apartament
- Compartimentare:Decomandat
- Disponibilitate:Imediat
- Nr. locuri parcare:1
Descriere
PROPRIETATE TRANZACTIONATA !
Compania STARTIMOB va propune spre achizitie, in sistem de Reprezentare Exclusiva si cu COMISION 0% din partea cumparatorului o garsoniera situata la etajul 4 al unui bloc de apartamente din zona Pietii Astra construit in 1967, cu acces la toate facilitatile urbane : mijloace de transport in comun, supermarketuri, piata, scoli, farmacii si banci .
Garsoniera are o suprafata construita desfasurata de 41,31 mp si o arie utila de 32,5 mp , o structura decomandata, dispune de finisaje moderne de tip parchet, gresie si faianta, tamplarie PVC cu geam termopan, usa metalica, este dotata cu centrala termica proprie (cu proiect de gaz si revizia la zi), are balcon inchis in termopan, pozitionare nord-estica , insorita, acces la usacatoria de pe etaj .
Garsoniera se tranzactioneaza mobilata si utilata complet iar printre dotari amintim : canapea extensibila, pat dublu rabatabil, dulapuri si biblioteca, mobila de bucatarie, mobilier hol si balcon, TV LCD) si produse electrocasnice de ultima generatie: combina frigorifica, plita vitroceramica, cuptor electric, hota, masina spalat automata marca Gorenje. Mobilierul din prezentare nu face obiectul vreunei negocieri .
Blocul este renovat si anvelopat termic, are acoperisul refacut si izolat recent, iar cheltuielile de intretinere sunt foarte mici.
Totodata proprietate dispune de loc de parcare concesionat de la Primarie .
Performanta energetica: -Clasa Energetica/ B
-Consumul anual scpecific de energie/ 198,21
-Indice de emisii echivalent CO2/ 44,6
-Consum anual specific de energie din surse regenerabile/ 0
Pozitionarea la numai 5 minute distanta de centrul orasului si la 1 minut de Piata Astra, este principalul atu al proprietatii. De asemenea, proximitatea fata de mijloacele de transport, magazine, mall-uri, scoli, gradinite, cabinete medicale, farmacii, spitale si banci, ii ofera viitorului proprietar conditii optime pentru achizitia unei garsoniere in aceasta zona atat pentru locuinta personala cat si ca investitie in vederea inchirierii ulterioare.
Proprietatea este libera spre vanzare, detin cheile proprietatii si se poate viziona oricand pe baza de programare telefonica.
Pret vanzare : 55.000 Euro.
Modalitati de achizitie : plata in moneda Euro, prin virament bancar, se accepta si credit ipotecar.
Detalii la nr. de telefon : 0733.092.093, persoana de contact -Aura Popa.
Adresa
- Localitate:Brasov
- Zona:Astra
Calculator credit ipotecar
Suma creditabila estimata (RON):
Suma creditata (RON)
Rata dobanzii
Rata lunara incepand de la (RON)
Suma totala de restituit (RON)
Suma totala de restituit credit vechi (RON)
Suma totala de restituit dupa refinantare (RON)
Suma economisita dupa refinantare (RON)
Rata lunara credit vechi (RON)
Rata luna dupa refinantare (RON)
Primeste o oferta personalizata, GRATUIT!
Aceste calcule sunt estimative si se bazeaza pe ofertele aflate in portofoliul TMA (The Money Advisor) pentru creditele in RON.
Pentru o solutie adaptata nevoilor tale de finantare, completeaza formularul de contact.
Hai sa incepem